진행중

이건창 생가

HeritageWiki
Lyndsey (토론 | 기여) 사용자의 2024년 10월 31일 (목) 18:28 판 (2024)

이동: 둘러보기, 검색


이건창 생가
Birthplace of Yi Geon-chang
이건창 생가, 국가유산포털, 국가유산청.
대표명칭 이건창 생가
영문명칭 Birthplace of Yi Geon-chang
한자 李建昌 生家
주소 인천광역시 강화군 화도면 해안남로1114번길 6 (사기리)
지정(등록) 종목 인천광역시 기념물
지정(등록)일 1995년 3월 2일
분류 유적건조물/인물사건/인물기념/탄생지
시대 조선시대
수량/면적 2동 / 1,163㎡
웹사이트 이건창 생가, 국가유산포털, 국가유산청.



해설문

국문

2018

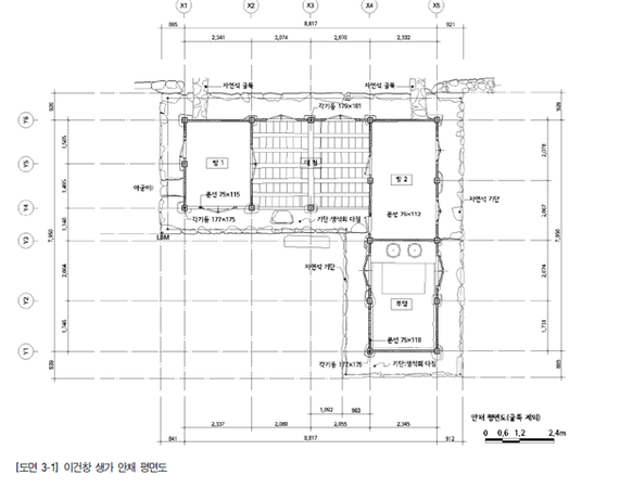
이건창(1852~1898)은 조선 시대 문신이자 대문장가로 충청우도 암행어사, 해주 감찰사 등을 지내면서 관리들의 비행을 단속하고 백성들의 구휼에 힘썼다. 저서로는 『당의통략(黨議通略)』이 있는데 이는 파당과 족친을 초월하여 공정한 입장에서 당쟁의 원인과 전개 과정을 기술한 명저이다. 생가는 자연석 담장으로 둘러진 ㄱ자형 평면을 가진 전형적인 중부 지방의 민가 형태로 1996년 정비되었다. 안으로 들어가면 ‘명미당(明美堂)’이라는 현판이 걸려 있으며 묘소는 양도면 건평리에 소재한다.


  • 생가 바로 옆에 할아버지 이시원의 묘가 있음.

2024

이건창(1892~1898)은 조선시대 철종 3년(1852)에 태어나서 고종 35년(1898)에 생을 마감했다. 1886년에 강화도에서 병인양요가 발발하자, 조정은 강화도 주민을 위로하고자 과거(별시)를 시행하였고 이건창은 이에 응시하여 15세의 나이에 급제하였다. 이 후 조선시대 문신이자 대문장가로 충청우도 암행어사, 해주 감찰사 등을 지내면서 관리들의 비행을 단속하고 백성들의 구휼에 힘썼다.

생가는 자연석 담장으로 둘러진 ‘ㄱ’자형 평면이며, 전형적인 중부 지방의 중류층 주택규모에 속한다. 생가의 안채에는 ‘명미당(明美堂)’이라는 편액을 걸어두었다. 이건창은 양명학을 중심으로 강화학의 사상과 전통을 보여주는 서책인 『명미당집』을 대표적으로 저술하였다.

이건창 생가의 우측 뒤편 산기슭에는 이건창의 직계 조상인 이대성(1651~1718), 이광명(1701~1778), 조부 이시원(1790~1866) 등의 묘가 위치하고 있다. 이건창 생가는 강화학파를 이끈 이건창 가문이 살았던 공간으로서 역사적 가치가 있다.

영문

  • Birthplace of Yi Geon-chang

2018

This house is the birthplace of Yi Geon-chang (1852-1898), a civil official and great writer of the late Joseon period. He passed the state examination at the age of 15 in 1867 and distinguished himself when he followed the state envoy to Qing China in 1874 as a document officer. He was appointed as a secret inspector several times and was dispatched to Chungcheong-do and Gyeonggi-do Provinces. In 1894, when a series of sweeping reforms were implemented which encouraged modernization of the Joseon dynasty, he opposed it and retired to his hometown in Ganghwa.

This house consists of a main quarters and a gate quarters. The current buildings were restored in 1996. The tomb of Yi Geon-chang (Incheon Monument No. 29) is located in the nearby Yangdo-myeon.

2024

This house was the childhood home of the civil official and scholar Yi Geon-chang (1852-1898).

Despite his young age, Yi Geon-chang passed a special state examination held for the residents of Ganghwado Island following the incidents of the French punitive expedition to Korea in 1866. In his various official posts, he cracked down on official misconduct and sought relief for the common people. He was also renowned for his outstanding skills in literary composition and calligraphy.

Renovated in the 1990s, the house comprises a wood-floored hall in the center, an underfloor-heated room to each side, and a kitchen in the front wing. The building's thatched roof and L-shaped layout are characteristic of a middle-class residence in the central region of the Korean Peninsula.

Located on the hill behind the house are the tombs of Yi's ancestors, including Yi Dae-seong (1651-1718) and Yi Gwang-myeong (1701-1778), as well as his grandfather Yi Si-won (1790-1866).

  • 해설문 내용 중 병인양요 연도 오탈자 확인 필요.
  • 1990년대 복원사업을 언급하되 중립적인 표현으로 서술하도록 했다.

영문 해설 내용

2024

이곳은 조선시대의 문신이자 학자인 이건창(1852-1898)이 어릴 때 살던 집이다.

1886년 강화도에서 병인양요가 발발하자, 조정에서는 강화도 주민을 위로하고자 특별 과거시험을 시행하였다. 이건창은 이에 응시하여 어린 나이에 급제하였고, 이후 여러 관직을 지내며 관리들의 비행을 단속하고 백성들의 구휼에 힘썼다. 문장가로 유명하였으며 글씨에도 뛰어났다.

이 집은 자연석 담장을 두른 ‘ㄱ’자형 초가집으로, 전형적인 중부 지방 중류층 주택의 구조를 보여준다. 대청을 중심으로 양옆에 온돌방이 있고, 오른쪽 방 앞에는 부엌이 있다.

이 집의 오른쪽 뒤편 산기슭에는 이건창의 할아버지인 이시원(1790-1866)을 비롯하여 직계 조상인 이대성(1651-1718), 이광명(1701-1778) 등의 묘가 있다.

갤러리