"심우장"의 두 판 사이의 차이

dh_edu
이동: 둘러보기, 검색
26번째 줄: 26번째 줄:
 
만해 한용운은 집이 남향으로 놓이면 남산에 있는 <span style="background-color: #99ffff;">일제의 조선총독부를 정면으로 바라보게 된다는 이유로</span>, 이를 등지기 위해 일부러 북향으로 배치하였다. </br>일반적으로 한옥은 햇볕을 잘 받기 위해 남향으로 짓지만, 심우장은 <span style="background-color: #99ffff;">항일 의식과 저항 정신</span>을 상징적으로 드러내기 위해 북향을 선택한 사례라 할 수 있다.
 
만해 한용운은 집이 남향으로 놓이면 남산에 있는 <span style="background-color: #99ffff;">일제의 조선총독부를 정면으로 바라보게 된다는 이유로</span>, 이를 등지기 위해 일부러 북향으로 배치하였다. </br>일반적으로 한옥은 햇볕을 잘 받기 위해 남향으로 짓지만, 심우장은 <span style="background-color: #99ffff;">항일 의식과 저항 정신</span>을 상징적으로 드러내기 위해 북향을 선택한 사례라 할 수 있다.
 
==='''단출하고 소박한 규모'''===
 
==='''단출하고 소박한 규모'''===
 
+
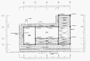
[[파일:심우장 도면.png|섬네일|왼쪽|300px|심우장 평면도(출처 : 심우장정밀실측보고서)]]
 
           [사랑채]
 
           [사랑채]
 
             ┌────────────┐
 
             ┌────────────┐

2025년 5월 29일 (목) 17:08 판

심우장 소개

심우장 전경

심우장(尋牛莊)은 한용운의 저택으로, 1933년부터 1955년 생을 마감할 때까지, 약 10여년간 거주한 장소이다.

심우장 개요
항목 내용
주소 서울특별시 성북구 성북로29길 24 (성북동 222-1)
건축 연도 1933년 (벽산 스님과 조선일보 사장 방응모 등의 지원으로 건립)
문화재 지정
  • 1984년 7월 5일: 서울특별시 기념물 제7호 지정
  • 2019년 4월 8일: 대한민국 사적 제550호로 승격
관리 기관 성북구청


건축 특징

심우장의 대지면적은 약 364㎡ (110평)이고, 건축면적은 약 81㎡ (약 24.5평)이다.

북향(北向) 배치

만해 한용운은 집이 남향으로 놓이면 남산에 있는 일제의 조선총독부를 정면으로 바라보게 된다는 이유로, 이를 등지기 위해 일부러 북향으로 배치하였다.
일반적으로 한옥은 햇볕을 잘 받기 위해 남향으로 짓지만, 심우장은 항일 의식과 저항 정신을 상징적으로 드러내기 위해 북향을 선택한 사례라 할 수 있다.

단출하고 소박한 규모

심우장 평면도(출처 : 심우장정밀실측보고서)
         [사랑채]
            ┌────────────┐
            │   사랑방   │
            │            │
 [대문] →   │   툇마루   │
            └────┬───────┘
                 │
            ┌────┴───────┐
            │            │
            │   안마당   │
            │            │
 ┌──────────┴──────┐ ┌───────────────┐
 │     부엌         │ │  안채(한용운 거실)│
 └──────────┬──────┘ └───────┬───────┘
            │                   │
            │     건너방        │
            └───────────────────┘

명칭 유래

역사적 의의

전시관련 정보