심우장
목차
심우장 소개
심우장(尋牛莊)은 한용운의 저택으로, 1933년부터 1955년 생을 마감할 때까지, 약 10여년간 거주한 장소이다.
| 항목 | 내용 |
|---|---|
| 주소 | 서울특별시 성북구 성북로29길 24 (성북동 222-1) |
| 건축 연도 | 1933년 (벽산 스님과 조선일보 사장 방응모 등의 지원으로 건립) |
| 문화재 지정 |
|
| 관리 기관 | 성북구청 |
건축 특징
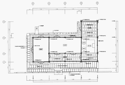
심우장의 대지면적은 약 364㎡ (110평)이고, 건축면적은 약 81㎡ (약 24.5평)이다. 실제 실내 사용 면적은 약 59㎡(17.8평)이다.
북향(北向) 배치
만해 한용운은 집이 남향으로 놓이면 남산에 있는 일제의 조선총독부를 정면으로 바라보게 된다는 이유로, 이를 등지기 위해 일부러 북향으로 배치하였다.
일반적으로 한옥은 햇볕을 잘 받기 위해 남향으로 짓지만, 심우장은 항일 의식과 저항 정신을 상징적으로 드러내기 위해 북향을 선택한 사례라 할 수 있다.
단출하고 소박한 규모
심우장은 정면 4칸, 측면 2칸의 ‘ㄴ’자형 평면을 가진 단층 한옥으로, 안채, 사랑채, 부엌 등이 안마당을 중심으로 유기적으로 배치되어 있다. 이는 당시 기준에서도 크거나 화려하지 않은 소박한 규모로, 한용운이 불교 승려로서 추구한 검소한 삶의 가치를 엿볼 수 있다.
또한, 대문을 들어서면 곧장 집 안이 보이지 않도록 담장이 꺾여 있어, 외부와 단절된 폐쇄적이고 은둔적인 공간 구성을 가진다. 이는 일제의 감시를 피하고자 했던 한용운의 의도가 반영된 것으로, 그의 독립운동가로서의 삶과도 깊은 관련이 있다.
전통 한옥 요소와 근대적 개량
- 지붕: 심우장은 전통 한옥처럼 기와지붕을 유지하고 있으며, 전면은 팔작지붕, 부엌 쪽은 맞배지붕으로 구성된 혼합형 구조이다. 이는 전통 양식을 따르면서도 공간 기능에 따라 다르게 설계된 점에서 특징적이다. 이때 팔작지붕은 지붕의 네 면 중 두 면은 박공 형태(삼각형), 나머지 두 면은 사선으로 내려오는 지붕구조이며, 맞배지붕은 지붕의 두 면이 서로 마주보며 삼각형 형태를 이루는 가장 단순한 형태의 지붕이다.
- 처마: 앞면과 사랑방 쪽은 겹처마, 부엌 쪽과 후면은 홑처마로 마감되어 있다. 특히 처마 아래에는 함석으로 만든, 비나 햇빛을 막아주는 작은 덮개인 함석 차양이 설치되어 있어, 근대 건축의 실용적 개량 요소가 반영되어 있음을 보여준다.
- 천장: 부엌 천장은 마감 없이 지붕 구조물이 그대로 노출된 연등천장으로, 상부 구조가 그대로 노출되어 있는 형태이다. 사용된 구조재도 고급 자재보다는 검소하고 실용적인 자재로, 한용운의 소박한 생활 철학이 건축에서 드러난다.
이처럼 심우장은 온돌과 목조 가옥이라는 전통적 요소를 바탕으로, 유리 미닫이문 등의 근대적 개량을 조화롭게 접목시킨 대표적인 근대 한옥이라 할 수 있다.
명칭 유래
명칭 ‘심우장(尋牛莊)’의 의미'
| 한자 | 음 | 의미 |
|---|---|---|
| 尋 | 심 | 찾을 심 |
| 牛 | 우 | 소 우 |
| 莊 | 장 | 장소, 거처를 뜻하는 ‘장’ |
즉, ‘심우장’은 문자 그대로는 ‘소를 찾는 장소’로 해석되며, 불교적으로는 ‘참된 자아를 찾는 수행의 공간’, 또는 ‘진리(불성)를 구하는 구도의 자리’라는 깊은 의미를 지닌다.
유래: 불교의 ‘십우도(十牛圖)’
소를 찾는다는 '심우'라는 말은 ‘불교 선종 수행에서 유래한 ‘십우도(十牛圖)’ 개념에서 비롯한다. 십우도는 수행자가 잃어버린 소를 찾는 비유를 통해 깨달음에 이르는 과정을 10단계로 나눈 불교 그림과 해설으로, 여기서 소는 곧 불성을 상징하며, ‘나 자신’ 또는 궁극의 진리를 가리킨다.
구체적인 단계를 살펴보자면,
| 단계 | 명칭 | 설명 | 소의 의미 |
|---|---|---|---|
| ① | 심우(尋牛) | 소를 찾는다 – 수행의 시작 | 진리를 찾기 위한 의지, 구도심 |
| ② | 견적(見跡) | 소의 발자국을 본다 | 진리의 단서 발견 |
| ③ | 견우(見牛) | 소를 본다 | 진리에 접근 |
| ④ | 득우(得牛) | 소를 잡는다 | 자아를 이해함 |
| ⑤ | 목우(牧牛) | 소를 기른다 | 마음을 다스림 |
| … | … | … | … |
| ⑩ | 입전수수(入廛垂手) | 시장에 들어가 손을 드리운다 | 깨달음을 세상 속에서 실천함 |
결국 소를 찾고 기르고 보내는 모든 과정은 불교 선종에서 자기 내면과 진리를 찾는 비유이며, 직관(直觀), 자각(自覺), 무심(無心)의 수행을 반영한다.
명칭에 담긴 만해의 사상적 맥락
- 불교적 수행정신: 한용운은 근대기 불교계 개혁과 불교대중화를 이끌었으며, 수행 중심의 선종 실천을 강조한 대표적인 인물이다. 그는 세속적인 성공보다 진리탐구를 중요시하는 삶의 태도를 유지했으며, 이러한 철학은 '심우장'이라는 명칭에 그대로 담겨있다.
- 항일과 은둔의 공간: '심우장'은 한용운의 단순한 은거처에 머물지 않고, 진리를 향해 나아가는 사유와 저항의 공간이었다. 이 명칭에는 조용한 장소에 머물더라도, 내면의 저항과 구도의 길을 멈추지 않겠다는 한용운의 항일 정신이 담겨 있다.
전시관련 정보
성설전시와 기획전시
(1) 상설전시- “만해 한용운의 삶과 심우장” 심우장은 만해 한용운이 1933년부터 말년을 보낸 거처로, 상설전시는 그의 삶과 철학을 입체적으로 조명한다.
| 전시 주제 | 주요 내용 |
|---|---|
| 만해의 생애와 활동 | 출가와 불교 개혁, 3·1운동 참여, 문학 활동 등 다양한 삶의 궤적이 연표와 사진으로 소개됨 |
| 『님의 침묵』 관련 전시 | 초판본, 육필 원고 복제본, 작품 해설 자료 등이 전시되며, 성북근현대문학관 등에서는 초판본 실물도 공개됨 |
| 심우장 건축 설명 | 북향 배치, 단출한 5칸 구조, 전통과 근대가 결합된 건축 요소 등 만해의 철학과 항일정신을 반영 |
| 유품 전시 | 의복, 안경, 필기구 등 만해의 일상 유품을 통해 그의 삶의 결을 생생하게 전달 |
| 시대 자료 전시 | 1920~30년대의 사회문화적 배경을 보여주는 사진, 지도, 사료 등이 함께 전시됨 |
(2)기획 전시 – 현대 예술 및 지역 연계 프로그램 심우장은 성북구 내 예술 단체, 대학교, 문학기관 등과 협력하여 다양한 주제의 기획 전시도 운영한다.
- 현대 작가의 만해 해석 전시: 만해의 사상과 작품을 현대적으로 재해석한 전시(예: '심우 아뜰리에')가 열리며, 시각예술, 설치미술, 미디어아트 등 다양한 매체가 활용된다.
- 건축 사진전, 시화전, 청년 작가 기획전: 심우장을 주제로 한 건축물 기록 전시, 한시와 시각예술의 결합인 묵향(墨香) 시화전, 청년 예술가들의 창작 전시도 진행된다.
- 지역 문화예술기관과의 협력 전시 순회: 성북문화원, 성신여대, 무형유산연합회 등과 연계한 순회 전시와 추모 예술제가 개최되어 지역문화의 생태계를 형성하고 있다.
공간 활용 및 전시 동선
심우장은 전통 한옥 구조를 살려 각 공간별로 성격에 맞는 전시와 프로그램을 운영한다.
| 공간 | 전시 용도 |
|---|---|
| 안채 | 한용운의 생애 연표 및 대표 유품 전시 |
| 사랑방 | 『님의 침묵』 등 문학 관련 자료 중심 전시 |
| 건너방 | 영상 전시 및 해설 공간 |
| 툇마루 / 안마당 | 계절 기획전, 시 낭송, 낭독극 등 소규모 야외 프로그램 운영 |
체험·교육 프로그램
- “심우장에서 만나는 만해” 인문 강좌: 지역 주민을 대상으로 만해 한용운의 문학, 사상, 독립운동 등을 깊이 있게 탐구하는 인문학 강좌가 정기적으로 운영된다.
- 해설 프로그램: 성북문화재단 소속 문화해설사가 상주하며, 관람객을 대상으로 현장 해설 서비스를 제공한다.
- 학생 대상 체험 학습: 초·중·고 학생을 위한 항일운동, 불교철학, 근현대사 등 교육 프로그램과 체험 학습이 마련되어 있다.
- 시 창작 워크숍: 『님의 침묵』을 함께 읽고, 만해의 시 세계를 체험하며 직접 시를 써보는 창작 워크숍도 운영된다.
전시 관련 운영 정보
심우장 관련 정보는 운영 정보는 다음과 같으며, 방문객은 별도의 주차공간이 없기에 유의해야 한다.
| 항목 | 내용 |
|---|---|
| 관람 시간 | 오전 10시 ~ 오후 5시 (월요일 휴관) |
| 관람료 | 무료 |
| 해설 서비스 | 현장 예약제 운영 (문화해설사 배정) |
| 운영 주체 | 성북구청 + 성북문화재단 협력 |