망천동 임당댁
| 망천동 임당댁 Imdangdaek House from Mangcheondong Village |
|
| 대표명칭 | 망천동 임당댁 |
|---|---|
| 영문명칭 | Imdangdaek House from Mangcheondong Village |
| 한자 | 輞川洞 林塘宅 |
| 주소 | 경상북도 구미시 수류길 44-31 |
| 지정(등록) 종목 | 경상북도 민속문화재 제59호 |
| 지정(등록)일 | 1985년 10월 15일 |
| 분류 | 유적건조물/주거생활/주거건축/가옥 |
| 수량/면적 | 1동 |
| 웹사이트 | 망천동 임당댁, 국가문화유산포털, 문화재청. |
해설문
국문
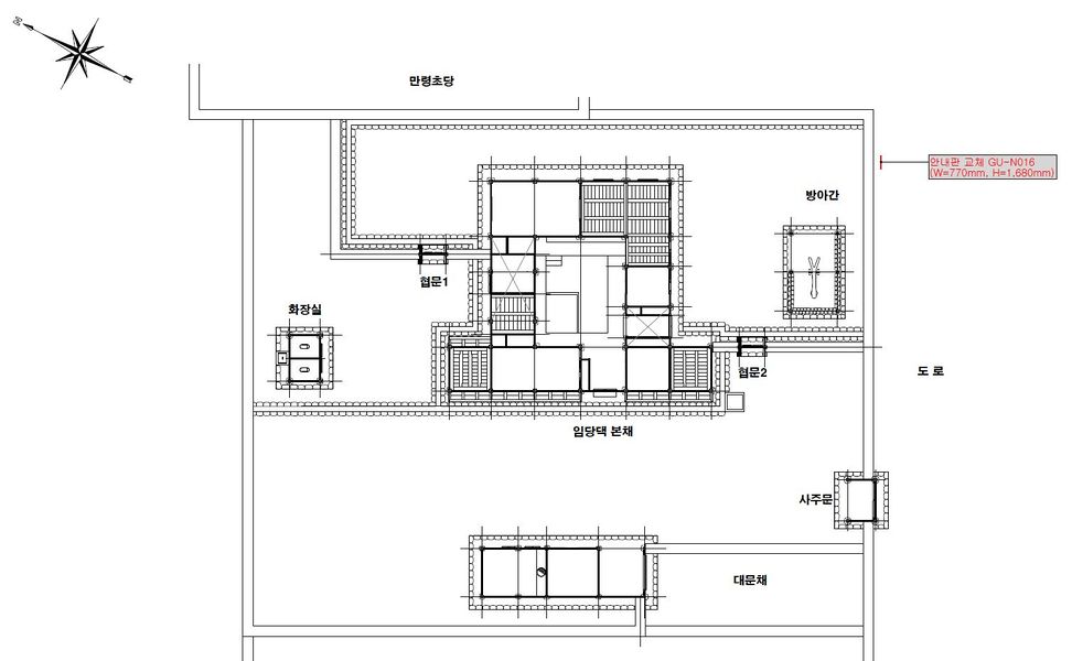
이 건물은 조선 영조 51년(1775)에 종서 김규진(宗瑞 金圭眞)이 세운 집으로 ‘단포고택(丹浦古宅)’이라 부르기도 한다. 원래 안동군 임동면 망천동에 있었으나, 1987년에 임하댐을 건설하면서 현재 위치로 옮겼다.
사랑채는 문을 중심으로 좌우로 분리되는 독특한 구성이며, 양 옆에 마루방을 한 칸씩을 더 달았다. 안채는 안동 지역의 일반적인 건물 구성인 미음자ㅁ字 모양이다. 대청마루는 윗방 옆의 마루를 안방 옆의 마루보다 조금 높게 만든 특이한 구조이다.
영문
Imdangdaek House from Mangcheon-dong
Imdangdaek House was built in 1775 in Mangcheondong Village, Andong, by Kim Gyu-jin. It was purchased in 1986 by a member of the Jeonju Ryu Clan and was moved in 1987 to its current location due to the construction of the Imha Dam.
The house consists of a gate quarters and a main quarters. The main quarters consists of a men’s quarters and women’s quarters that together form a square shape with a courtyard in the middle.
The men’s quarters consists of an inner gate in the center with an underfloor-heated room to each side and a wooden-floored room at each end. The women’s quarters consists of a main underfloor-heated room to the left and a wooden-floored hall to the right. To the left of the courtyard is a kitchen and a storage room, while to the right is a secondary underfloor-heated room. The part of the wooden-floored hall adjacent to the secondary room is made slightly higher than the part adjacent to the main room, which is an unusual feature.
영문 해설 내용
임당댁은 1775년에 김규진이 안동 망천동에 지었다. 1986년 전주류씨 가문의 한 사람이 이 집을 샀고, 1987년에 임하댐을 건설하면서 현재 위치로 옮겼다.
임당댁은 대문채와 본채로 이루어져 있으며, 본채는 사랑채와 안채가 안마당을 가운데 두고 'ㅁ'자형을 이루고 있다.
사랑채는 중문을 중심으로 양옆에 온돌방을 두었고, 양쪽 끝에 마루방을 하나씩 더 달았다. 안채는 왼쪽에 안방이 있고 오른쪽에 대청이 있다. 안마당 왼쪽에는 부엌과 고방이, 오른쪽에는 건넌방이 있다. 대청에서 건넌방과 인접한 부분은 안방 쪽 부분보다 조금 높게 만든 특이한 구조이다.
- 단포고택의 뜻이 확인되지 않아 생략함.
갤러리
참고자료
- 망천동 임당댁, 디지털구미문화대전, 한국학중앙연구원. http://gumi.grandculture.net/gumi/toc/GC01202468
- 마을 가장 높은 곳, 경북도 문화재 고택들 나란히, 대구일보, 2017.10.23. http://www.idaegu.com/?c=3&sort=d_regis&orderby=desc&uid=372535